Currently occupied with a lease through June 30, 2026, available for lease starting July 1, 2026.
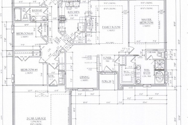
Wonderful 4-bedroom, 2-bath house in Deer Creek! The home has a great room, dining room, a well laid out kitchen with a dining area and a utility room. Hardwood flooring in the living and dining rooms. Features include high ceilings, fireplace, refrigerator, dishwasher, disposal, stove, microwave, ceiling fans, patio, fenced yard, and attached garage.
Deer Creek has great amenities including tennis courts, pool, clubhouse, fitness center, playground and jogging trail (tenant registration required). Close to schools, shopping and the military bases.
12-month lease term.
Pets: upon approval by the homeowner (non-refundable pet fee).
No smoking allowed in this home. Currently occupied with a lease through June 30, 2026, available for lease starting July 1, 2026. Contact property manager for application requirements and showing process. PHOTOS are for reference for room sizes and layout.



















