Lowder New Homes is seventy years strong and celebrating the best way we know how! $25,000 for your next chapter. Because milestones are meant to be shared.
Incentives are subject to change or withdrawal at any time without notice. Some restrictions apply. See a Lowder New Homes representative for details.
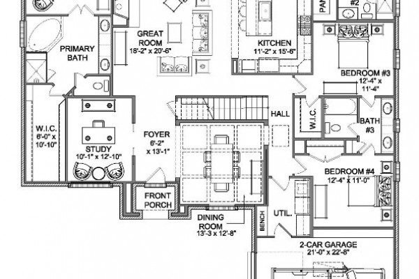
Don’t miss this breathtaking new home in Deer Creek! Welcome to the McIntosh II – one special home! The floor plan offers room and space for wonderful everyday living and special family gatherings!! Complete with 4 bedrooms and 3 full baths on the main level and 5th bedroom/4th full bath and bonus room upstairs. This home features a beautiful foyer to welcome guests, formal dining room for entertaining with a coffer ceiling, study/office with glass pocket doors. 10′ ceiling Great room that opens to the kitchen with upper cabinets up to the ceiling and undermount lighting, 5 burner 36′ gas cooktop with custom hood vent, wall oven with microwave, walk-in pantry with wood shelving. Lowder’s energy efficient package with Low “E” high performance windows that restrict ultraviolet light and keep the heat out in the summer and cold at bay in the winter, stainless steel GE Energy Star appliances, SEER rating of 15 on HVAC units, blown insulation in ceiling for R-value of 38, exterior walls insulated with energy efficient high density fiberglass for an R-value of 15 which provides our homeowners a much more energy efficient home and reduces energy costs. Lowder New Homes offers a 10-year structural warranty from the industry’s leading home warranty company, 2-10 Home Warranty.
Courtesy of: Lowder New Homes Sales Inc
- MLS #578564
- Bedrooms5
- Baths4
- SQFT3252
- ParkingAttached, Garage, Garage Door Opener
- Pool TypeCommunity, Pool
- No. of Parking2
- Lot Dimensions80 ' x 141'
- Acres0.27










































































