Lowder New Homes is seventy years strong and celebrating the best way we know how! $25,000 for your next chapter. Because milestones are meant to be shared.
Incentives are subject to change or withdrawal at any time without notice. Some restrictions apply. See a Lowder New Homes representative for details.
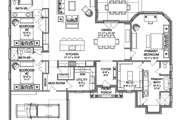
Get in early! Just breaking ground of this build! The Vina II plan has 4 spacious bedrooms and 3 full baths all on one level. As you enter the home you notice the 12-foot ceilings throughout the main living area and the primary bedroom. Formal dining room opens to the Great room and Kitchen. The Owners suite offers a very large walk-in closet with drawers in the center. The primary bath has a free standing tub, frameless shower glass, linen closet, and a knee space for a vanity. Outdoor entertaining area features covered patio. Beautiful kitchen fit for a Top Chef with a generous island! A 5 burner gas cooktop with a decorative hood and separate wall oven, large stainless-steel sink and pull-out trash can built in. A laundry room that makes laundry fun and less of a chore with extended cabinets, a utility sink, and a bar to hang clothes. The garage entry opens to the mud room with a boot bench to drop all your personal belongings on the way in.
Lowder New Homes offers a 1 Year builders limited warranty and a 10-year structural warranty from the industry’s leading home warranty company, 2-10 Home Warranty.
Courtesy of: Lowder New Homes Sales Inc
- MLS #583515
- Bedrooms4
- Baths3
- SQFT2641
- ParkingAttached, Garage
- Pool TypeCommunity, Pool
- No. of Parking2
- Lot Dimensions85x175x94x175
- Acres0.35


