First Down to Your Dream Home with the help of Lowder New Homes! Offer valid on select homes and for a limited time only. Incentive includes $20,000 to be used towards buyer’s choice of available upgrades, financing options, or approved items through builder, plus $5,000 in closing costs when financing with a Lowder New Homes preferred lender. $5,000 closing cost contribution may not be combined with any other third-party lender credits. Incentives are subject to change or withdrawal at any time without notice. Some restrictions apply. See a Lowder New Homes representative for details.
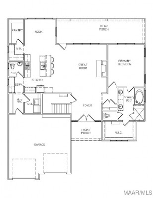
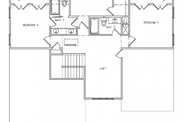
The Waverly offers everything you could hope for! The 7′ x 10.5′ front porch is welcoming with its stone siding and wood columns! Lovely open Foyer for greeting guests, Beautiful kitchen with gas stove, Stainless Steel Appliances, 42″ Custom cabinets with quartz counter tops. The kitchen is the place to be in this home with a nice sized pantry, Morning Kitchen, and Serving staging area. Off of the Kitchen is the Mud Room with a boot bench and the Utility Room. A Powder Room on the first floor for quests. The Primary bedroom is on the first floor, split vanities, garden tub, walk in tile shower with a bench, and separate water closet. LVP flooring throughout main living areas, carpet in the bedrooms, hard tile in the baths and laundry room. Upstairs features three bedrooms and two full baths. Two bedrooms share a full bath with entry doors from each room. There is a loft for that extra playroom and/or living space. Exterior features a large covered back patio. A dream garage with 8′ garage doors and one side of the garage is approximately 23′ long.
Lowder New Homes offers a 10-year structural warranty from the industry’s leading home warranty company, 2-10 Home Warranty.
Courtesy of: Lowder New Homes Sales Inc
- MLS #580585
- Bedrooms4
- Baths3
- SQFT2632
- ParkingAttached, Garage
- Pool TypeCommunity, Pool
- No. of Parking2
- Lot Dimensions67 x 156
- Acres0.25























