Lowder New Homes is seventy years strong and celebrating the best way we know how! $25,000 for your next chapter. Because milestones are meant to be shared.
Incentives are subject to change or withdrawal at any time without notice. Some restrictions apply. See a Lowder New Homes representative for details.
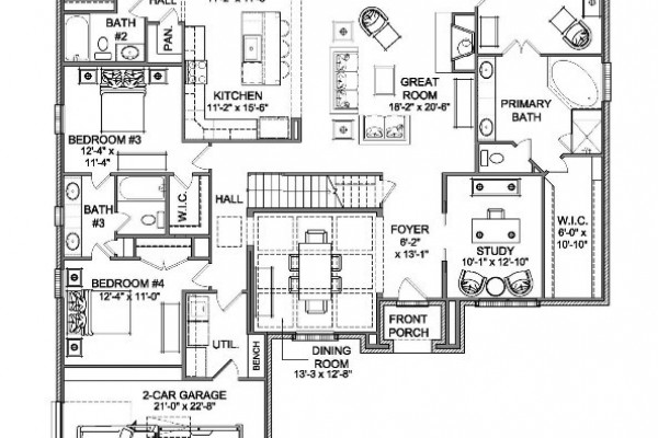
This is the McIntosh II floorplan. Welcome to your dream home! This spacious 2-story gem offers 5 bedrooms and 4 full baths, perfectly designed for comfort and function. The main level features the primary suite with split vanities, walk-in closet —plus three secondary bedrooms, formal dining, and separate office space. The open great room, breakfast room, and stylish kitchen with an island along with a walk-in pantry makes entertaining a breeze. Upstairs, you’ll find an additional bedroom, full bath, and a bonus room. Enjoy the utility room with bench seating off the 2-car garage and relax on the 18′ x 9′ covered patio— along with and extended uncovered patio perfect for easy indoor-outdoor living!
Lowder New Homes offers a 10-year structural warranty from the industry’s leading home warranty company, 2-10 Home Warranty.



