WHAT EVERYONE IS LOOKING FOR!!!
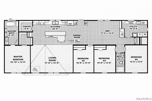
Holtville schools! 4 bedrooms!! 2 living areas! Open floor concept! Wood burning fireplace! The list goes on and on and on! Large, beautiful double wide set to FHA standards. Clean and move in ready.
It’s amazing home has two living areas, One has a real wood burning fireplace. Two car carport, 10’x24′ storage building, both stay partially fence yard. Also a fenced area for your fur babies. Beautiful screened in porch to enjoy your morning coffee or evening toddies. This is a split plan. The main bedroom features a gorgeous large bathroom with huge walk-in shower!
Very open living concept. Washer and dryer remain in the big laundry room. Front porch has handicap access ramp already built. Plenty of yard room to ramble.
Small above ground pool stays.














































