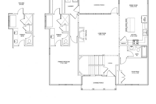
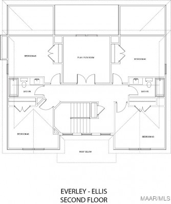
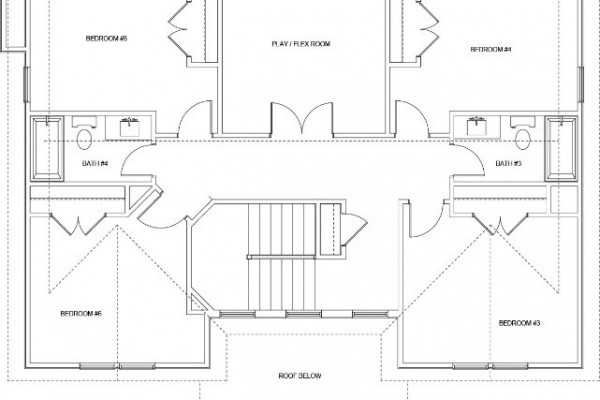
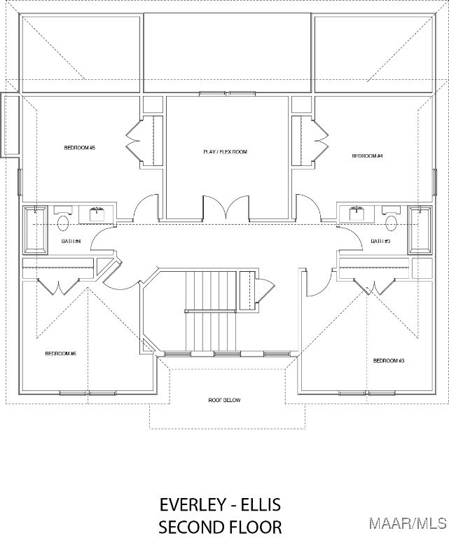
Introducing the NEW Ellis Floor Plan! This spacious 2,883 sq ft home is designed for comfort and convenience, featuring 6 bedrooms and 4 bathrooms. The main floor includes a large owner’s suite with a luxurious bathroom and walk-in closet, offering a private retreat. There are also two additional bedrooms on the first floor. Upstairs, you’ll find three more well-sized bedrooms, offering privacy and flexibility for a growing family or multiple guests. A bonus area is located on the second floor, ideal for a home office, playroom, or media room. The home also features a detached 2-car garage, providing ample storage and parking. Everley community offers current amenities for our homeowners including Pickle Ball court, Disc Golf Bins on community green space for family fun and sidewalk access connecting to Pike Road Nature Trail. Everley is located on Marler Road, close to Pike Road elementary school.
Courtesy of: Holland Homes, LLC.
- MLS #580670
- Bedrooms6
- Baths4
- SQFT2883
- ParkingDetached, Garage
- No. of Parking2
- Lot Dimensions.
- Acres0.20























