Skip to main content

5123 Lower James Street Montgomery AL 36116

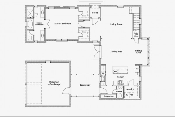
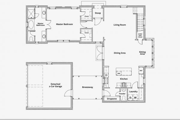
Overlooking Hampstead’s wooded preserves, this beautifully appointed home offers the perfect blend of privacy, elegance, and walkable village living. The front door enters into a charming foyer and solid wood floors leading to a spacious great room that flows seamlessly into the kitchen and dining area, with new alabaster paint, all thoughtfully positioned to capture the peaceful natural views. A charming sunroom provides the perfect setting for morning coffee or bird watching.
The kitchen features updated pendant lighting, wine cooler, oversized work island, stainless steel appliances, gas range, quartz countertops, and classic subway tile backsplash. The sink is located on the side countertop with windows offering a view of the outdoor space. French doors open to a professionally landscaped courtyard designed for effortless outdoor living, complete with maintenance-free turf and lush plantings including gardenias, camellias, hydrangeas, roses, and Japanese maple. A wide covered breezeway connecting the two-car garage creates an inviting space for al fresco dining. The abundant cabinet space in kitchen, laundry
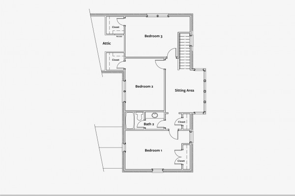
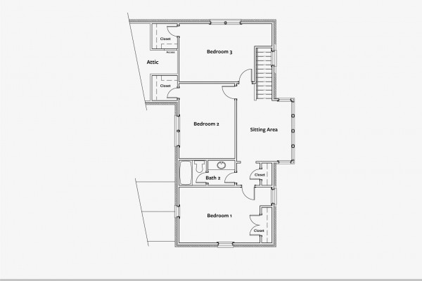
The spacious primary suite offers two walk-in closets and a spa-inspired bath with soaking tub, separate vanities, and walk-in shower. Upstairs, an open landing leads to three additional guest bedrooms, providing comfortable space for family and visitors.
Enjoy the best of the Hampstead lifestyle just steps away — with walkable access to City Grill, Taste, The Tipping Point, the Barking Lot dog park, playground, tennis and pickleball courts, two neighborhood pools, Hampstead Athletic Club, Montessori school, public library, and miles of parks and green space.

Strategically priced to sell at $519,900, this is the best value in Hampstead at just $208 psf.

Courtesy of: Hampstead Community Realty LLC
  • MLS #
    584415
  • Bedrooms
    4
  • Baths
    2
  • SQFT
    2492
  • Parking
    Attached, Garage
  • Pool Type
    Community, Pool
  • No. of Parking
    2
  • Lot Dimensions
    53X74
  • Acres
    0.09

RPG Realty

Tel: (334) 481-0116
Email: info@rpg-realty.com

The data relating to real estate for sale on this web site comes in part from the IDX Program of the Multiple Listing Service, Inc. of Montgomery Area Association of REALTORS® Inc. Real estate listings held by brokerage firms other than RPG Realty are governed by MLS Rules and Regulations and detailed information about them includes the name of the listing companies. This information provided is for consumers' personal, non-commercial use and may not be used for any purpose other than to identify prospective properties consumers may be interested in purchasing. Information herein is believed to be accurate and timely, but no warranty as such is expressed or implied. Listing information © 2018 Multiple Listing Service, inc. of Montgomery Area Association of REALTORS®, Inc.