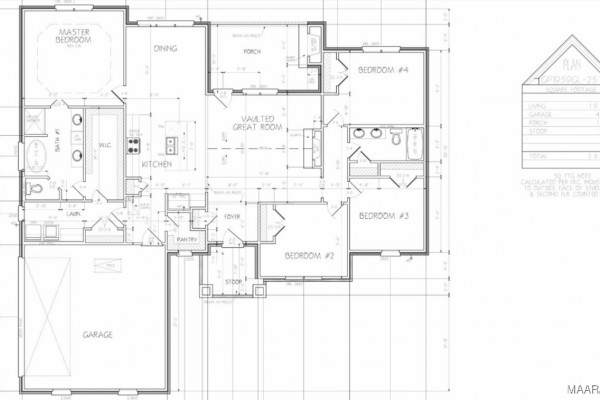
New Construction in the Highly Desirable Holtville School District! All finishes, colors, photos, descriptions etc. are ex. of builders’ product. Builder requires appointment before going to property. Welcome to Grace Landing—one of Holtville’s newest developments! This beautifully crafted new construction home offers a functional and stylish layout designed for both comfortable living and entertaining. Full privacy fence and refrigerator included! Step inside to an open-concept living and kitchen area, complete with a cozy gas fireplace as the centerpiece. The kitchen features abundant cabinet and counter space, ideal for meal prep, gatherings, and everyday convenience. Just off the kitchen, the dining area is perfectly placed for both casual and formal meals. The home offers a split floor plan for added privacy. The spacious primary suite is tucked away on one side and includes room for a full king-size set, a large walk-in closet, dual vanity, and a separate freestanding tub and shower. On the opposite side, you’ll find three generously sized guest bedrooms and a full guest bath with a large vanity and tub/shower combo. Out back, enjoy the perfect setup for entertaining or relaxing year-round with a covered patio and wood-burning fireplace. Additional features include energy-efficient spray foam insulation and a tankless water heater for added comfort and cost savings. Use 4375 Hogan Rd for GPS purposes. Official address to be assigned. All finishes, colors, photos, and descriptions are examples of builder’s previous work and may vary. Call today to schedule your private showing!
Courtesy of: DL Realty
- MLS #581957
- Bedrooms4
- Baths2
- SQFT1959
- ParkingAttached, Garage
- No. of Parking2
- Lot DimensionsIrregular
- Acres0.40



