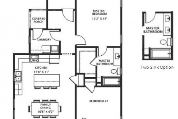
New Designer Home on Everley Lot 75! Welcome to The Emma floor plan! This floor plan features 3 bedrooms, 2 bathrooms and is 1,489 square feet. As you walk into the Emma, you enter into the family dining room that leads into the open concept kitchen and living room. As you make your way into the home, you’ll find the laundry room and kitchen pantry. Bedrooms 2 and 3 share a jack-and-jill bathroom. Across the hall is the primary suite that features a spacious bedroom, walk-in closet and large bathroom with double vanities. The Exterior Color Schemes for the community have been thoughtfully selected by our Design Team. Visit our website plan to see the designated floor plan and color scheme for each lot.
The Everley community is centrally located for an easy commute to the cities of Montgomery and Auburn. This scenic community is surrounded by serenity and is a short distance from top-ranked Pike Road Elementary School. Current and future amenities include resort-style pool and pavilion, pickle ball courts, disc golf green space, and sidewalks connecting to the Pike Road Nature Trail.
Courtesy of: Holland Homes, LLC.
- MLS #580693
- Bedrooms3
- Baths2
- SQFT1465
- ParkingParking Pad
- Pool TypeCommunity, None
- Lot Dimensions40x60
- Acres0.10




































