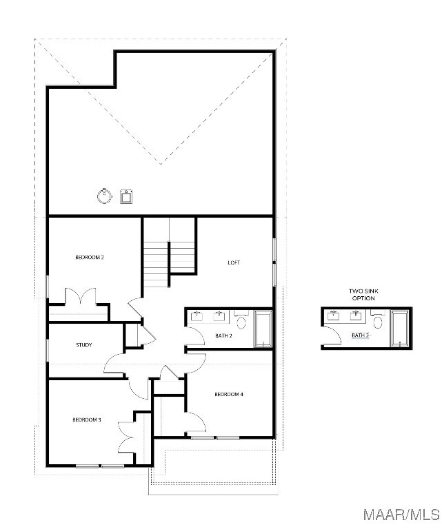
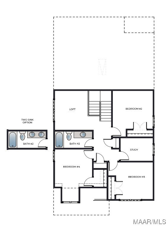
Welcome to The Elise B Floor Plan. This home is perfect for families seeking both functionality and style. On the main floor, the home features an open-concept great room, kitchen, and dining area, ideal for entertaining. The kitchen includes a spacious island and pantry, creating an efficient space for meal prep. A convenient laundry room and powder room are also located on the first floor, adding to the home’s practicality. The owner’s suite is located on the first floor, offering a private retreat with a large walk-in closet and a luxurious en-suite bathroom. Upstairs, you’ll find three additional bedrooms and a full bathroom, with the option of a two-sink setup for added convenience. A loft area provides extra space for relaxation or study. A covered front porch and a 2-car garage complete the floor plan, offering plenty of storage and curb appeal. With 4 bedrooms, 2.5 bathrooms, and a well-designed layout, the Elise B is an excellent choice for those seeking a home with both space and style. The community of Everley is nested into the growing city of Pike Road. With an easy commute to the cities of Montgomery and Auburn, this scenic community is surrounded by serenity and is a short distance from top-ranked Pike Road Elementary School. Current amenities include pickle ball courts, disc golf bins in community green space, and sidewalks connecting to the Pike Road Road Nature Trail.
Courtesy of: Holland Homes, LLC.
- MLS #581564
- Bedrooms4
- Baths2
- SQFT2016
- ParkingAttached, Garage
- Pool TypeCommunity, Pool
- No. of Parking2
- Lot Dimensions40x106
- Acres0.10











































