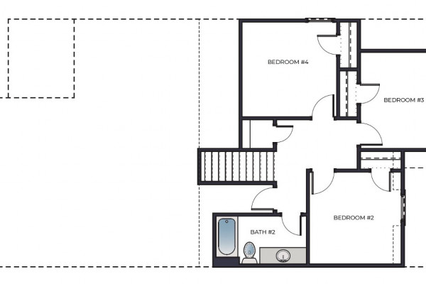
BRAND NEW PLAN that can close by year end! INCENTIVES ARE IN FULL SWING-The 1,860 sq ft Ellie plan offers a spacious and well-designed layout perfect for modern living with a 2 CAR GARAGE. The main floor features an open-concept great room, dining room, and kitchen, creating an inviting space for family gatherings and entertaining. The kitchen includes a pantry for additional storage, and a convenient laundry room is located nearby. A powder room is also available on this level for guests. The owner’s suite, located on the first floor, provides a peaceful retreat with a private bathroom and a walk-in closet. Upstairs, you’ll find three additional bedrooms and a full second bathroom, offering ample space for family, guests, or home offices. A covered front porch welcomes you, while a covered back porch extends your living area for outdoor enjoyment. The home also includes a garage, adding functionality and extra storage space. With a smart, open layout, the Ellie plan blends comfort and style for everyday living. The community of Everley is nested into the growing city of Pike Road. With an easy commute to the cities of Montgomery and Auburn, this scenic community is surrounded by serenity and is a short distance from top-ranked Pike Road Elementary School. Current and future amenities include resort-style pool and pavilion, pickle ball courts, disc golf green space, and sidewalks connecting to the Pike Road Nature Trail.
Courtesy of: Holland Homes, LLC.
- MLS #581547
- Bedrooms4
- Baths2
- SQFT1860
- ParkingAttached, Garage
- No. of Parking2
- Lot Dimensions40x106
- Acres0.10













































