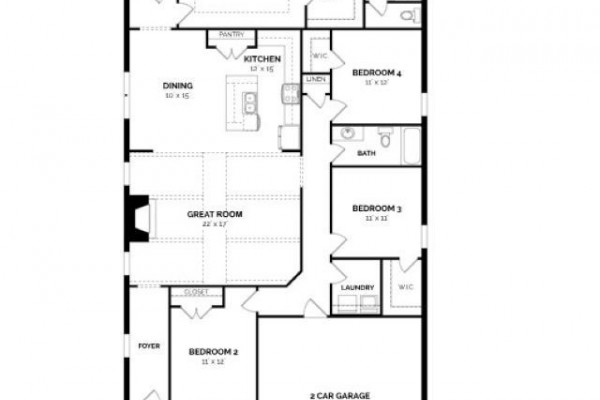
Special incentives available! Please ask for details. The Lenox floorplan is a one-story open-concept design that offers both functionality and comfort. A welcoming foyer leads into a spacious living area with a vaulted ceiling, flowing seamlessly into the kitchen and dining room. The kitchen features a large center island, built-in appliances, granite countertops, and an expanded pantry. The private primary suite includes a walk-in closet and a bathroom with a double granite vanity, soaking tub, and tiled shower with glass door. With its thoughtful layout and inviting spaces, the Lenox is designed to meet everyday living needs with style.
Courtesy of: Porch Light Real Estate, LLC.
- MLS #584902
- Bedrooms4
- Baths2
- SQFT2191
- ParkingAttached, Garage
- Pool TypeCommunity, Pool
- No. of Parking2
- Lot Dimensions.17
- Acres0.17

