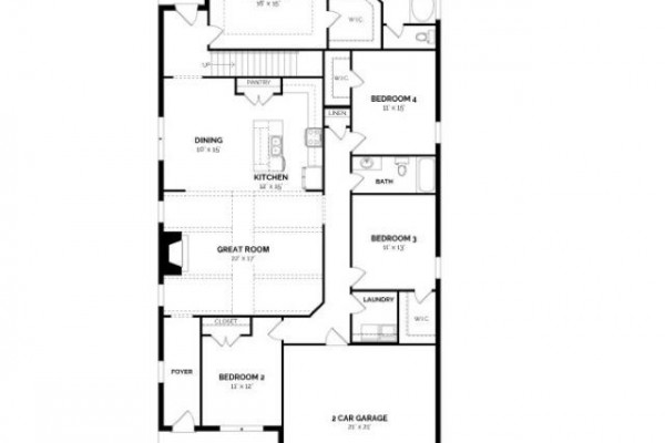
Looking for a BEAUTIFUL , NEW, STONE MARTIN BUILDERS community to live just minutes from CHARMING downtown Wetumpka and the LOVELY, Lake Jordan? Special incentives available! Please ask for details. Discover the Overton—a flexible, open-concept plan designed for connection and comfort. A refined foyer leads to a vaulted living area filled with natural light. The kitchen features a large center island, built-in appliances, granite countertops, and an expanded pantry, all flowing seamlessly into the dining area—perfect for hosting or everyday living. A private retreat offers a spacious layout with a spa-like bath, including a granite double vanity, garden tub, and tiled shower. Upstairs, a versatile bonus room with a half bath suits a variety of needs. The Overton offers timeless style with modern functionality.
Courtesy of: Porch Light Real Estate, LLC.
- MLS #584662
- Bedrooms5
- Baths2
- SQFT2682
- ParkingAttached, Garage
- Pool TypeCommunity, Pool
- No. of Parking2
- Lot Dimensions.31
- Acres0.31




