Skip to main content

1021 Dozier Road Wetumpka AL 36093

TWENTY THOUSAND INCENTIVE! This beautiful home sits on a large lot in the highly desired Redland School Zone, just minutes from Maxwell Air Force Base and Gunter Air Force Base—a location that offers both convenience and community.

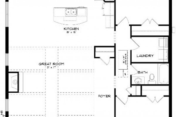
Inside, the “Kinkade” plan combines comfort and style. The great room features a vaulted, beamed ceiling that feels bright and spacious, while the custom fireplace creates a cozy spot to gather on cooler nights.

The kitchen is designed for cooking and entertaining, with custom cabinets, granite countertops, and upgraded stainless steel appliances. The private primary suite offers peace and relaxation, complete with a roomy bath that makes mornings easy and evenings restful.

You’ll also love the thoughtful details, like a laundry room that doesn’t back up to a bedroom and an upstairs bonus room with a half bath—ideal for a home office, game room, or even an extra bedroom. Please see the onsite agent for details (subject to terms and can change at any time)

Courtesy of: Porch Light Real Estate, LLC.
  • MLS #
    574068
  • Bedrooms
    3
  • Baths
    2
  • SQFT
    2383
  • Parking
    Attached, Garage
  • No. of Parking
    2
  • Lot Dimensions
    .70
  • Acres
    0.70

RPG Realty

Tel: (334) 481-0116
Email: info@rpg-realty.com

The data relating to real estate for sale on this web site comes in part from the IDX Program of the Multiple Listing Service, Inc. of Montgomery Area Association of REALTORS® Inc. Real estate listings held by brokerage firms other than RPG Realty are governed by MLS Rules and Regulations and detailed information about them includes the name of the listing companies. This information provided is for consumers' personal, non-commercial use and may not be used for any purpose other than to identify prospective properties consumers may be interested in purchasing. Information herein is believed to be accurate and timely, but no warranty as such is expressed or implied. Listing information © 2018 Multiple Listing Service, inc. of Montgomery Area Association of REALTORS®, Inc.