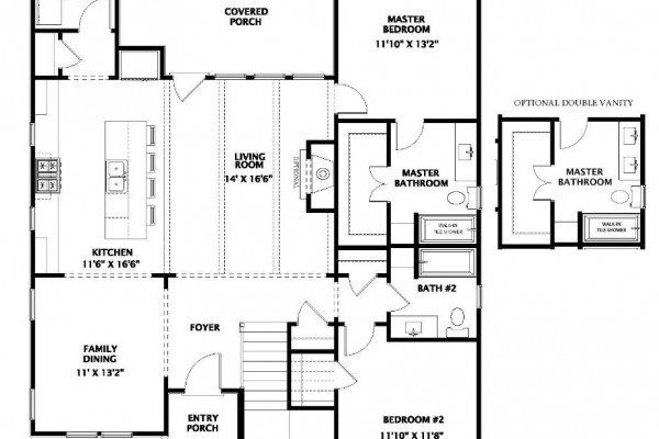
PROPOSED CONSTRUCTION with 6month Build Time – Welcome to The Ella floor plan. This charming floor plan features 5 bedrooms, 4 bathrooms and is 2,299 square feet. As you enter into the home, you step into a large foyer that leads into the open concept living room, family dining room and kitchen. The living room has large windows that overlook the back covered porch. The kitchen features a spacious pantry and leads to the laundry room. On the other side of the living room rests the primary suite that has a large bedroom and bathroom with a single vanity and a walk-in closet. The main level of the home also features a second bedroom and bathroom. As you make your way upstairs, you will find a third bedroom with an en-suite bathroom, two more bedrooms that share a full bathroom and unfinished attic space. The Ella plan features a detached 2 car garage.The community of Everley is nestled into the growing city of Pike Road. With an easy commute to the cities of Montgomery and Auburn, this scenic community is surrounded by serenity and is a short distance from top-ranked Pike Road Elementary School. Current and future amenities include resort-style pool and pavilion, pickle ball courts, disc golf green space, and sidewalks connecting to the Marler Road Nature Trail.
Courtesy of: Holland Homes, LLC.
- MLS #580896
- Bedrooms5
- Baths4
- SQFT2299
- ParkingDetached, Garage
- Pool TypeCommunity, Pool
- No. of Parking2
- Lot Dimensions72x116
- Acres0.19
 
				
























