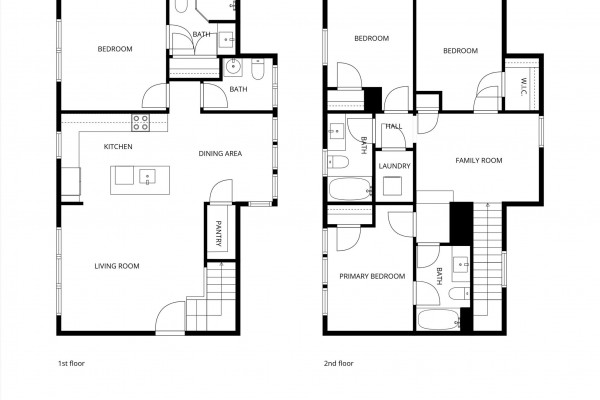
REDUCED! Lake Martin Living made EASY! Talisi Cove is a gated Lake Martin community, and this 4 BR/3.5 BA beauty has all the space and amenities you will need for making unforgettable lake memories with family and friends. Amenities include a community pool, assigned boat slip and boat storage and lake views. Relax on the covered porch or spacious back patio while you watch the kids run and play on the big common area. Things the owners LOVE about this property: the location to fun hot spots like The Social, Kowaliga Restaurant, Chimney Rock and nearby marinas and the energy efficiency of this home, having a 2025 average monthly power bill of just $120! Seller added extensive landscaping, with sprinkler system and landscape lighting as well as custom blinds throughout.
Courtesy of: ARC Realty
- MLS #584331
- Bedrooms4
- Baths3
- SQFT1648
- ParkingParking Pad
- Pool TypeIn Ground, Pool







































